the
valencia
project

opening doors to opportunity

Valencia Logo White

The Valencia Project: A Habitat for Humanity Capital Region Housing Development

Habitat for Humanity Capital Region is a nonprofit organization that helps people build and improve places to call home in Clinton, Eaton, and Ingham Counties, Michigan. We believe housing affordability plays a critical role in strong and stable communities.

Beginning in Summer 2026, we will break ground on the Valencia Project, a ten-home development on the south side of Lansing. The proposed development is thoughtfully designed to complement the existing neighborhood, adding quality homes that enhance the character of the cul-de-sac while expanding access to affordable homeownership within a well-connected and carefully landscaped setting

Designed to accommodate a range of household needs, the subdivision will offer a mix of housing types with an emphasis on comfort, privacy, and community integration. This project represents a nearly $2 million investment in our community, with benefits that will extend far beyond the homes themselves. Using innovative, energy-efficient construction methods, these houses will provide lasting value for the families who purchase them.

Handshake Trust Icon

Interested in Habitat Homeownership?

We are looking for qualified families and individuals who are interested in living in the Valencia Blvd. development!

Habitat for Humanity Capital Region builds and rehabilitates homes in partnership with families and individuals who are in need of a safe, decent, and affordable place to live. Through an application process, qualified homebuyers are selected to purchase affordable homes that Habitat Capital Region builds or rehabilitates in Ingham, Eaton, and Clinton counties.

Click the link below, and sign up to attend an information session with our Homeowner Services team. Learn more about the Homeownership Program and to decide if it is right for you.

Learn More About Becoming A Community Partner!

At Habitat for Humanity Capital Region, building affordable homes takes community – that’s why our partnerships are so vital. These partnerships extend our reach in powerful ways: Financial support ensures that homes can be built affordably, while employee volunteers bring energy and teamwork to build sites. When organizations invest in Habitat Capital Region, they’re building hope, stability, and opportunity for local families.

Click to download a PDF containing more information about Valencia:

Click to download a PDF that contains our full partnership packet:

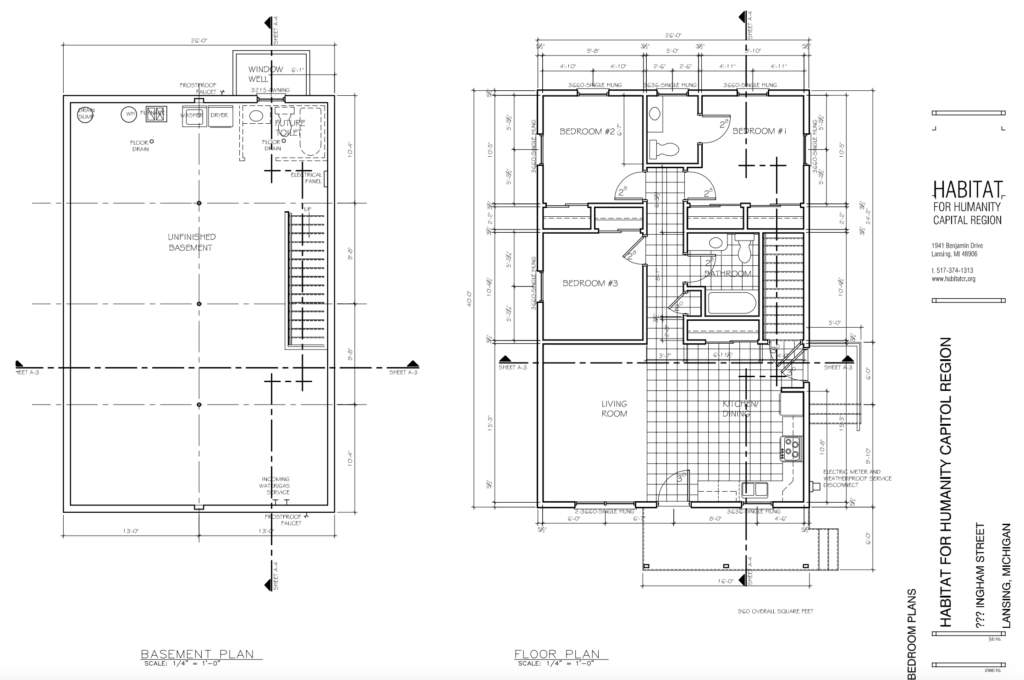
Our Vision: Plans and Renderings

(Note: Renderings and floor plans are provided as conceptual designs. Final construction may vary, and specific features, dimensions, or layouts shown are subject to change.)

Icon_blue-white_hammer 1

How to Get Involved

Habitat Capital Region works best when everyone works together. Everyone plays a vital role in our mission: volunteers, homeowner partners, and community partners. Your financial support, your voice, and your time will help bring strength, stability, and independence to people in need of a decent place to live on Valencia Blvd.

Donate to support the Eastfield Neighborhood Project

Donate

There are many ways to give! Help bring strength, stability, and independence to local families and individuals in need of a safe, decent, and affordable place to live.

Volunteer to support the Eastfield Neighborhood Project

Volunteer

Volunteer with Habitat for Humanity today, help change a family’s tomorrow. We rely on hundreds of volunteers to building homes, communities, and hope.

Get housing info through the Eastfield Neighborhood Project

Housing Info

Habitat for Humanity Capital Region builds homes in partnership with people from all walks of life who are in need of a safe, decent, and affordable place to live.

Thank your for your interest in the Valencia Project

If you have any questions about Habitat Capital Region or the programs and services we provide, please reach out to us by emailing info@habitatcr.org or call the office at (517) 374-1313.

Scroll to Top